Собственники «эталонного» казанского ЖК грозятся перекрыть проезд будущим соседям - «Инфраструктура»

В «Реальное время» обратились собственники казанского ЖК «Журавли», который возводится как эталон комплексного развития территорий для столицы Татарстана. Жители двух домов выступают против того, чтобы по отмежеванной им территории проходил сквозной проезд через весь комплекс, который они, выбирая квартиры, не видели на генплане. Застройщик же настаивает на том, чтобы этот проезд появился — «для удобства жителей». Подробнее о проектных метаморфозах и особенностях планирования новых микрорайонов Казани — в нашем материале.
«Нам лишний выезд не нужен»
Новоселы из ЖК «Журавли» обратились в редакцию, сообщив о «неприятном сюрпризе, который им преподнесли управляющая компания и застройщик». Как рассказал житель дома №48а Михаил Шутов, при покупке квартиры ему и другим клиентам показывали генплан с двумя заездами в жилой комплекс, и это всех устраивало.
— А сейчас выясняется, что заезд к новому, пока еще не сданному дому №46а будет проходить по нашей территории! И это решение принято без нашего ведома и согласия, с грубым нарушением Жилищного кодекса, — убежден Михаил. — В силу статьи 36 ЖК земельный участок, на котором расположен многоквартирный дом, относится к общему имуществу собственников помещений в данном доме. Собственниками нашего дома на общем собрании принято решение ограничить проезд по своему участку для лиц, не являющихся собственниками помещений в доме и, соответственно, не имеющих прав долевой собственности на общее имущество. Но директор нашей управляющей компании «Территория комфорта» Ильнур Хайртдинов ссылается на сервитут — дескать, что мы обязаны предоставить проезд.
Собственники домов 48а и 48в рассказали, как прошла их встреча с руководством УК и представителем компании-застройщика. Инициативная группа активистов спросила:
— Давным-давно были заложены два въезда — зачем нам третий? Почему именно там запланирован въезд?
— Это пожарный проезд к детскому саду. Если у вас появится лишний выезд на улицу Аделя Кутуя — вам будет неплохо, — ответили им.
— Нам он не нужен! У нас есть два выезда, нам достаточно.

Хотят ли жители войны
Против дополнительного въезда и, как следствие, сквозного проезда мимо домов № 48а и 48в их жители приводят следующие доводы. Кроме безопасности (дети и взрослые ходят по тем же дорогам, по которым ездят автомобили, а со сквозным проездом машин заметно добавится), речь идет о нарушении прав собственников домов на их территорию и — это едва ли не самое главное и болезненное — о парковочных местах, говорят активисты ЖК.
— Если там будет проезд, — рассуждает Шутов, — то жильцы нового дома станут парковаться на нашей территории, поскольку у них априори не будет достаточного количества парковочных мест. Все наши дома не имеют подземных парковок, а мест на наземных уже сейчас не хватает.
— Машины — очень тяжелая тема, — настаивали активисты на встрече с директором УК и представителем застройщика. — Если их машины будут парковаться у нас — война будет! Давайте делать по закону, проведите голосование, спросите у жильцов дома 48в — хотят они этот проезд?
А когда представители УК сослались на право потребовать установления сервитута, собственники жилья ответили: «Это возможно только при условии, что нет другой возможности попасть на участок, где расположен многоквартирный жилой дом!»
— Существующий проезд между улицами Аделя Кутуя и Рихарда Зорге, который идет мимо нашего дома, а затем между «Максидомом» и «Горки-парком», хотят придвинуть вплотную к нашему дому, — рассказал «Реальному времени» собственник квартиры в доме №48в Вячеслав Тимофеев. — Под наши окна! Мотивируя это тем, что к детсаду нужно обеспечить пожарный проезд. К нему уже есть два пожарных проезда со стороны улицы Даурской, но нам навязывают еще и этот. А мы даже защитить свои интересы не можем в полном объеме, поскольку «Унистрой» не закрепил за нашим домом земельный участок, в отличие от дома №48а. У них земля в частной собственности у собственников дома, у нас — нет. И «Унистрой» отказывается оформлять ее централизованно, как было сделано у соседей: там говорят, что компания к этой земле уже отношения не имеет. Теперь вроде как собственники должны регистрировать свои права на землю, причем обратиться за регистрацией должен каждый самостоятельно.
А главное, говорит Вячеслав, что из-за всех этих накладок под окнами его дома появится фактически объездная дорога:
— По нашей дворовой территории автомобили будут объезжать вечную пробку на Зорге и Родины…

КАМАЗ как последний аргумент
Между тем возможность попасть на участок, где будет сдаваться новый дом, есть — непосредственно с улицы Аделя Кутуя, утверждают активисты из ЖК «Журавли», но пока там никакого заезда не построено. И они не верят в его скорое появление — в силу затратности этих работ.
— Когда мы со своим генпланом пришли, красные линии были уже утверждены городом, — доказывали на встрече с жильцами представители УК и застройщика свое право проложить вдоль красных линий сквозные проезды.
— Красные линии везде есть, но они ограничивают не дороги, это — границы участков, — возражали те.
В ходе разговора всплыла еще одна неприятная для жильцов заселенных домов новость: обозначенный на новом генплане с нежеланным для них сквозным проездом между домами прямой заезд к новому дому №46а с улицы Аделя Кутуя будет построен неизвестно когда. На вопрос, почему неизвестно, представитель застройщика заявил:
— Это не наша территория!
— У нового дома будет один въезд, что ли? — возмутились жильцы.
— Пока да…
— Я лично пригоню и поставлю свой КАМАЗ туда, — потерял терпение и пригрозил перекрыть этот единственный проезд житель дома 49в под одобрительный гул других активистов. — Пусть я потеряю деньги…

«Все согласно ППТ»
В ООО «Управляющая компания «Унистрой» в ответ на запрос «Реального времени» о строительстве внутриквартального проезда по придомовой территории в ЖК «Журавли» сообщили:
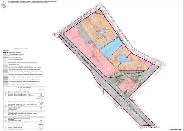
— Сейчас в комплексе ведется строительство дома по ул. Даурской, д. 46а. Основной заезд на территорию жилого дома предусмотрен с улицы Аделя Кутуя. Также для удобства жителей предусмотрен дополнительный заезд, который будет обеспечивать сквозное движение от ул. Рихарда Зорге до ул. Аделя Кутуя, а также соединит жилые дома с будущей школой. Проезд расположен строго в ранее утвержденных «красных линиях проезда и техкоридора инженерных сетей» согласно Постановления исполнительного комитета г. Казани от 24.05.2018 №2727 «Об утверждении проекта планировки территории, ограниченной улицами Даурской, Рихарда Зорге, Аделя Кутуя». Документ прошел публичные слушания и утвержден в установленном законом порядке.
Если посмотреть на утвержденный Казгорисполкомом в мае 2018 года проект планировки территории, ограниченной улицами Даурской, Рихарда Зорге, Аделя Кутуя, в рамках которого и ведет строительство «Унистрой», то на нем закреплены красные линии двух проездов к детсаду внутри ЖК «Журавли» — со стороны улиц Зорге (в объезд «Максидома») и Аделя Кутуя (напрямую).

Однако на генплане ЖК пожарные проезды к детсаду проложены по территории жилых домов. Обозначенный на ППТ прямой проезд к детсаду (дом № 48б) со стороны улицы Аделя Кутуя проходит там, где сегодня находится боковой фасад дома №46а.
Что же касается будущей школы, ради которой проезд в ЖК «Журавли» решено сместить под окна дома №48в, то, как утверждает Вячеслав Тимофеев, жильцы выяснили, что школа там строиться не будет:
— Для этого не хватит места. А вот еще один многоквартирный дом, по нашим сведениям, там могут построить.

«Следует правильно выстраивать проектирование»
Вопрос, почему в ЖК «Журавли» при минимальном количестве заездов с городских магистралей практически не оказалось нормальных внутриквартальных проездов и как теперь можно выйти из этой ситуации, не ущемляя права и интересы жильцов, «Реальное время» задало заведующему кафедрой градостроительства КГАСУ Александру Дембичу.
— Эта территория должна была стать эталоном для будущих проектов комплексного развития территорий Казани, — напомнил он. — В таких случаях следует начинать с того, что надо правильно выстраивать проектирование. Если такую территорию разбить на куски и проектировать и согласовывать их по отдельности, ничего хорошего не получится.
Эксперт издания заметил, что и сам столкнулся со сложностями планирования строительства в этом микрорайоне — к нему обращались по поводу эскизного проекта одного-двух домов:

— А почему не организовать максимальное количество заездов ко всем домам, чтобы люди не ездили и не ходили по чужой территории? — поинтересовалось «Реальное время». — Здесь пока вроде бы такая возможность есть?
— Это было бы неправильно. Если есть хорошая городская магистраль и на нее сделано множество выездов, она встает в пробках и на ней возникают многочисленные аварии. Поэтому количество таких выездов ограничивается. А вот решить, как правильно организовать потоки внутри микрорайона и где их выводить на эту магистраль — это действительно важная задача. И для этого нужен проект. Сейчас создан Институт городского развития под руководством Татьяны Прокофьевой — это задача для него. Кстати, я слышал, что именно этой территорией они собираются заняться. Проблема в том, что застройка идет, а к проектной работе толком так и не приступили.
Инна Серова
И будьте в курсе первыми!